Hajdu

A HAJDU Hajdúsági Ipari Zrt. kondenzációs kazán, vegyestüzelésű kazán, bojler (forróvíztároló, vízmelegítő), puffertartály, napkollektor és háztartási készülékek gyártására szakosodott. A fogyasztók megújuló igényeit korszerű, megbízható, kiváló minőségű és környezetbarát termékekkel elégíti ki. A kiváló minőség folyamatos megtartását, és annak állandó fejlesztését biztosítja az évenkénti rendszerauditokon (SGS), és a különböző termékjóváhagyásra akkreditált hazai és külföldi vizsgálóintézetek (MEEI, MBVTI, VDE, LCIE, BEAB, stb.) rendszeres, helyszíni gyártásellenőrzési felülvizsgálatain való kiváló megfelelés.
Hajdu termékekre jellemzők:
- Kiváló minőség, melyre bizonyíték a háztartásokban már jól bevált termékek.
- Megbízhatóság.
- Széleskörű, biztos szerviz- és pótalkatrész ellátás.
- Környezetbarát gyártási technológia
- Tanúsított, szabványos minőségirányítási és környezetirányítási rendszer
HAJDU PUFFERTARTÁLY – fűtővíz tárolásra
| KATEGÓRIA | TERMÉKNÉV | TÍPUS | ŰRTARTALOM (liter) |
RÉSZLETES MŰSZAKI INFORMÁCIÓ - ÁR |
|---|---|---|---|---|
| Hajdu puffertartály | PT300 | Hőcserélő nélkül - villany pótfütés opció |
300 | Hajdu PT300 adatlap - ár |
| Hajdu puffertartály | PT300C | Egy hőcserélő - villany pótfütés opció |
300 | Hajdu PT300C adatlap - ár |
| Hajdu puffertartály | PT500CF | Két hőcserélő- villany pótfütés opció |
500 | Hajdu PT500CF adatlap - ár |
| Hajdu puffertartály | PT750CF | Két hőcserélő - villany pótfütés opció |
750 | Hajdu PT750CF adatlap - ár |
| Hajdu puffertartály | PT1000CF | Két hőcserélő - villany pótfütés opció |
1000 | Hajdu PT1000CF adatlap - ár |

A HAJDU PUFFERTARTÁLY zárt, meleg vizes központi fűtési rendszer hőtárolójaként szolgál. Kialakítástól függően hőtermelőként rácsatlakoztatható gáz és olajtüzelésű kazán, szilárd tüzelőanyagú kazán, vegyestüzelésű kazán, biomassza kazán, szolár rendszer, valamint hőszivattyú. Összekapcsolható használati melegvíz (HMV) indirekt tárolóval. A két hőcserélős típus közvetlenül is tud használati meleg vizet szolgáltatni. A Hajdu puffertároló szigetelése 100 mm vastag lágy poliuretán hab, köpenyük műbőr. A köpeny és a szigetelés leszerelhető, ezeket eltávolítva könnyebben állítható a tároló az üzemelési helyére. Szigetelés nélkül a legnagyobb puffertároló is bevihető 800-as méretű ajtón.
HAJDU AQUASTIC PUFFERTARTÁLY – fűtővíz tárolásra
| KATEGÓRIA | TERMÉKNÉV | TÍPUS | ŰRTARTALOM (liter) |
RÉSZLETES MŰSZAKI INFORMÁCIÓ - ÁR |
|---|---|---|---|---|
| Hajdu Aquastic puffertartály | AQ PT300 | Hőcserélő nélkül - villany pótfütés opció |
300 | Hajdu AQ PT300 adatlap - ár |
| Hajdu Aquastic puffertartály | AQ PT300C | Egy hőcserélő - villany pótfütés opció |
300 | Hajdu AQ PT300C adatlap - ár |
| Hajdu Aquastic puffertartály | AQ PT500 | Hőcserélő nélkül - villany pótfütés opció |
500 | Hajdu AQ PT500 adatlap - ár |
| Hajdu Aquastic puffertartály | AQ PT500C | Egy hőcserélő - villany pótfütés opció |
500 | Hajdu AQ PT500C adatlap - ár |
| Hajdu Aquastic puffertartály | AQ PT500C2 | Egy hőcserélő - villany pótfütés opció |
500 | Hajdu AQ PT500C2 adatlap - ár |
| Hajdu Aquastic puffertartály | AQ PT750 | Hőcserélő nélkül - villany pótfütés opció |
750 | Hajdu AQ PT750 adatlap - ár |
| Hajdu Aquastic puffertartály | AQ PT750C | Egy hőcserélő - villany pótfütés opció |
750 | Hajdu AQ PT750C adatlap - ár |
| Hajdu Aquastic puffertartály | AQ PT750C2 | Egy hőcserélő - villany pótfütés opció |
750 | Hajdu AQ PT750C2 adatlap - ár |
| Hajdu Aquastic puffertartály | AQ PT1000 | Hőcserélő nélkül - villany pótfütés opció |
1000 | Hajdu AQ PT1000 adatlap - ár |
| Hajdu Aquastic puffertartály | AQ PT1000C | Egy hőcserélő - villany pótfütés opció |
1000 | Hajdu AQ PT1000C adatlap - ár |
| Hajdu Aquastic puffertartály | AQ PT1000C2 | Egy hőcserélő - villany pótfütés opció |
1000 | Hajdu AQ PT1000C2 adatlap - ár |
| Hajdu Aquastic puffertartály | AQ PT1500 | Hőcserélő nélkül - villany pótfütés opció |
1500 | Hajdu AQ PT1500 adatlap - ár |
| Hajdu Aquastic puffertartály | AQ PT1500C | Egy hőcserélő - villany pótfütés opció |
1500 | Hajdu AQ PT1500C adatlap - ár |
| Hajdu Aquastic puffertartály | AQ PT1500C2 | Egy hőcserélő - villany pótfütés opció |
1500 | Hajdu AQ PT1500C2 adatlap - ár |
| Hajdu Aquastic puffertartály | AQ PT2000 | Hőcserélő nélkül - villany pótfütés opció |
2000 | Hajdu AQ PT2000 adatlap - ár |
| Hajdu Aquastic puffertartály | AQ PT2000C | Egy hőcserélő - villany pótfütés opció |
2000 | Hajdu AQ PT2000C adatlap - ár |
| Hajdu Aquastic puffertartály | AQ PT2000C2 | Egy hőcserélő - villany pótfütés opció |
2000 | Hajdu AQ PT2000C2 adatlap - ár |

A fűtési melegvíz tárolására kifejlesztett Aquastic típuscsaládba tartozó puffertartályok alkalmazása különösen nélkülözhetetlen olyan berendezések mellett, melyek nem egyenletes mennyiségben állítják elő a hőenergiát, mint például a napkollektor, vegyestüzelésű kazán, vagy a hőszivattyú.
A fűtési puffertároló többek között arra hivatott, hogy a jelentkező különböző fűtési igényeket kiegyenlítse, nagyságrendekkel növelve ezzel az energiatermelés hatásfokát.
A puffertartályok, szerkezeti kialakításuknak, és a szerelhető köpenynek köszönhetően könnyen szállíthatók és beépíthetőek az egyes fűtési rendszerekbe. A későbbiekben pedig tartós, gazdaságos működést tesznek lehetővé.
HAJDU BOJLER - VÍZMELEGÍTŐ használati melegvíz (HMV) ellátásra
| KATEGÓRIA | TERMÉKNÉV | ELHELYEZÉS | FŰTÉSE | ŰRTARTALOM (liter) |
RÉSZLETES MŰSZAKI INFORMÁCIÓ - ÁR |
|---|---|---|---|---|---|
| Hajdu Bojler | FT5 | Fali - felső |
villany | 5 | Hajdu FT5 adatlap - ár |
| Hajdu Bojler | FTA5 | Fali - alsó |
villany | 5 | Hajdu FTA5 adatlap - ár |
| Hajdu Bojler | FT10 | Fali - felső |
villany | 10 | Hajdu FT10 adatlap - ár |
| Hajdu Bojler | FTA10 | Fali - alsó |
villany | 10 | Hajdu FTA10 adatlap - ár |
| Hajdu Bojler | Z30E | Fali - függőleges |
villany | 30 | Hajdu Z30E adatlap - ár |
| Hajdu Bojler | Z50EK-1 | Fali - függőleges |
villany | 50 | Hajdu Z50EK-1 adatlap - ár |
| Hajdu Bojler | Z80EK-1 | Fali - függőleges |
villany | 80 | Hajdu Z80EK-1 adatlap - ár |
| Hajdu Bojler | ZV80 | Fali - vízszintes |
villany | 80 | Hajdu ZV80 adatlap - ár |
| Hajdu Bojler | Aquastic ECO80K | Fali - függőleges |
villany | 80 | Hajdu Aquastic ECO80K adatlap - ár |
| Hajdu Bojler | GB80.1 | Fali - függőleges |
gáz-kéményes | 80 | Hajdu GB80.1 adatlap - ár |
| Hajdu Bojler | GB80.2 | Fali - függőleges |
gáz-kémény nélküli | 80 | Hajdu GB80.2 adatlap - ár |
| Hajdu Bojler | Aquastic ECO120K | Fali - függőleges |
villany | 120 | Hajdu Aquastic ECO120K adatlap - ár |
| Hajdu Bojler | ZV120 | Fali - vízszintes |
villany | 120 | Hajdu ZV120 adatlap - ár |
| Hajdu Bojler | Z120EK-1 | Fali - függőleges |
villany | 120 | Hajdu Z120EK-1 adatlap - ár |
| Hajdu Bojler | GB120.1 | Fali - függőleges |
gáz-kéményes | 120 | Hajdu GB120.1 adatlap - ár |
| Hajdu Bojler | GB120.2 | Fali - függőleges |
gáz-kémény nélküli | 120 | Hajdu GB120.2 adatlap - ár |
| Hajdu Bojler | ZV150 | Fali - vízszintes |
villany | 150 | Hajdu ZV150 adatlap - ár |
| Hajdu Bojler | Z150EK-1 | Fali - függőleges |
villany | 150 | Hajdu Z150EK-1 adatlap - ár |
| Hajdu Bojler | Z200E | Fali - függőleges |
villany | 200 | Hajdu Z200E adatlap - ár |
| Hajdu Bojler | Z300TP | Padlón - álló |
villany | 300 | Hajdu Z300TP adatlap - ár |
A HAJDU BOJLER használati melegvíz (HMV) igény kielégítésére szolgál.
A bojler egyidejűleg több vízvételi hely ellátására is alkalmas.
A tárolt melegvíz mind tisztálkodási, mind étkezési célra alkalmas.
A tárolótartály acéllemezből készül, a korrózió elleni védelmet fiziológiailag semleges.
Speciális tűzzománc és beépített magnézium aktívanód biztosítja.
HAJDU AQUASTIC BOJLER - VÍZMELEGÍTŐ
| KATEGÓRIA | TERMÉKNÉV | ELHELYEZÉS | FŰTÉSE | ŰRTARTALOM (liter) |
RÉSZLETES MŰSZAKI INFORMÁCIÓ - ÁR |
|---|---|---|---|---|---|
| Hajdu Bojler | Aquastic AQ30 | Fali - függőleges |
villany | 30 | Hajdu Aquastic AQ30 adatlap - ár |
| Hajdu Bojler | Aquastic AQ50 | Fali - függőleges |
villany | 50 | Hajdu Aquastic AQ50 adatlap - ár |
| Hajdu Bojler | Aquastic AQ80 | Fali - függőleges |
villany | 80 | Hajdu Aquastic AQ80 adatlap - ár |
| Hajdu Bojler | Aquastic AQ100 | Fali - függőleges |
villany | 100 | Hajdu Aquastic AQ100 adatlap - ár |
| Hajdu Bojler | Aquastic AQ120 | Fali - függőleges |
villany | 120 | Hajdu Aquastic AQ120 adatlap - ár |
| Hajdu Bojler | Aquastic AQ150 | Fali - függőleges |
villany | 150 | Hajdu Aquastic AQ150 adatlap - ár |
| Hajdu Bojler | Aquastic AQ200 | Fali - függőleges |
villany | 200 | Hajdu Aquastic AQ200 adatlap - ár |
A HAJDU AQUASTIC BOJLER használati melegvíz (HMV) igény kielégítésére szolgál.
A bojler egyidejűleg több vízvételi hely ellátására is alkalmas.
A tárolt melegvíz mind tisztálkodási, mind étkezési célra alkalmas.
A tárolótartály acéllemezből készül, a korrózió elleni védelmet fiziológiailag semleges.
Speciális tűzzománc és beépített magnézium aktívanód biztosítja.
HAJDU INDIREKT TÁROLÓ - indirekt fűtésű használati melegvíz (HMV) tároló
| KATEGÓRIA | TERMÉKNÉV | ELHELYEZÉS | FŰTÉSE | TÍPUS | ŰRTARTALOM (liter) |
RÉSZLETES MŰSZAKI INFORMÁCIÓ - ÁR |
|---|---|---|---|---|---|---|
| Hajdu indirekt tároló |
HR-N30 |
Padlón - álló |
Kazán (kondenzációs) |
Egy (nagyfelületű) hőcserélő - hőfokszabályzó |
120 | Hajdu HR-N30 adatlap - ár |
| Hajdu indirekt tároló |
HR-N40 |
Padlón - álló |
Kazán (kondenzációs) |
Egy (nagyfelületű) hőcserélő - hőfokszabályzó |
160 | Hajdu HR-N40 adatlap - ár |
| Hajdu indirekt tároló |
HR-T40 |
Padlón - álló |
Kazán (kondenzációs) |
Egy (nagyfelületű) hőcserélő - hőfokszabályzó |
160 | Hajdu HR-T40 adatlap - ár |
| Hajdu indirekt tároló |
IDE75F |
Fali - függöleges |
Kazán vagy napkollektor |
Egy hőcserélő - hőfokszabályozó - beépített villany pótfűtés opció |
75 | Hajdu IDE75F adatlap - ár |
| Hajdu indirekt tároló |
IND75F |
Fali - függöleges |
Kazán vagy napkollektor |
Egy hőcserélő - hőfokszabályozó - beépített villany pótfűtés opció |
75 | Hajdu IND75F adatlap - ár |
| Hajdu indirekt tároló |
IDE100F |
Fali - függöleges |
Kazán vagy napkollektor |
Egy hőcserélő - hőfokszabályozó - beépített villany pótfűtés |
100 | Hajdu IDE100F adatlap - ár |
| Hajdu indirekt tároló |
IND100F |
Fali - függöleges |
Kazán vagy napkollektor |
Egy hőcserélő - hőfokszabályozó - beépített villany pótfűtés opció |
100 | Hajdu IND100F adatlap - ár |
| Hajdu indirekt tároló |
IND100S |
Padlón - álló |
Kazán vagy napkollektor |
Egy hőcserélő - hőfokszabályozó - beépített villany pótfűtés opció |
100 | Hajdu IND100S adatlap - ár |
| Hajdu indirekt tároló |
IDE100S |
Padlón - álló |
Kazán vagy napkollektor |
Egy hőcserélő - hőfokszabályozó - beépített villany pótfűtés |
100 | Hajdu IDE100S adatlap - ár |
| Hajdu indirekt tároló |
IND150F |
Fali - függöleges |
Kazán vagy napkollektor |
Egy hőcserélő - hőfokszabályozó - beépített villany pótfűtés opció |
150 | Hajdu IND150F adatlap - ár |
| Hajdu indirekt tároló |
IDE150F |
Fali - függöleges |
Kazán vagy napkollektor |
Egy hőcserélő -hőfokszabályozó - beépített villany pótfűtés |
150 | Hajdu IDE150F adatlap - ár |
| Hajdu indirekt tároló |
IND150S |
Padlón - álló |
Kazán vagy napkollektor |
Egy hőcserélő - hőfokszabályozó - beépített villany pótfűtés opció |
150 | Hajdu IND150S adatlap - ár |
| Hajdu indirekt tároló |
Hajdu IDE150S |
Padlón - álló |
Kazán vagy napkollektor |
Egy hőcserélő -hőfokszabályozó - beépített villany pótfűtés |
150 | Hajdu IDE150S adatlap - ár |
| Hajdu indirekt tároló |
IDE200F |
Fali - függöleges |
Kazán vagy napkollektor |
Egy hőcserélő -hőfokszabályozó - beépített villany pótfűtés |
200 | Hajdu IDE200F adatlap - ár |
| Hajdu indirekt tároló |
IDE200S |
Padlón - álló |
Kazán vagy napkollektor |
Egy hőcserélő -hőfokszabályozó -beépített villany pótfűtés | 200 | Hajdu IDE200S adatlap - ár |
| Hajdu indirekt tároló |
IND200F |
Fali - függöleges |
Kazán vagy napkollektor |
Egy hőcserélő -hőfokszabályozó - beépített villany pótfűtés opció |
200 | Hajdu IND200F adatlap - ár |
| Hajdu indirekt tároló |
IND200S |
Padlón - álló |
Kazán vagy napkollektor |
Egy hőcserélő -hőfokszabályozó - beépített villany pótfűtés opció |
200 | Hajdu IND200S adatlap - ár |
| Hajdu indirekt tároló |
STA200C |
Padlón - álló |
Napkollektor vagy kazán |
Egy hőcserélő - villany pótfűtés opció |
200 | Hajdu STA200C adatlap - ár |
| Hajdu indirekt tároló |
STA200C2 |
Padlón - álló |
Napkollektor vagy kazán |
Két hőcserélő - villany pótfűtés opció |
200 | Hajdu STA200C2 adatlap - ár |
| Hajdu indirekt tároló |
STA300C |
Padlón - álló |
Napkollektor vagy kazán |
Egy hőcserélő - villany pótfűtés opció |
300 | Hajdu STA300C adatlap - ár |
| Hajdu indirekt tároló |
STA300C2 |
Padlón - álló |
Napkollektor vagy kazán |
Két hőcserélő - villany pótfűtés opció |
300 | Hajdu STA300C2 adatlap - ár |
| Hajdu indirekt tároló |
STA400C |
Padlón - álló |
Napkollektor vagy kazán |
Egy hőcserélő - villany pótfűtés opció |
400 | Hajdu STA400C adatlap - ár |
| Hajdu indirekt tároló |
STA400C2 |
Padlón - álló |
Napkollektor vagy kazán |
Két hőcserélő - villany pótfűtés opció |
400 | Hajdu STA400C2 adatlap - ár |
| Hajdu indirekt tároló |
STA500C |
Padlón - álló |
Napkollektor vagy kazán |
Egy hőcserélő - villany pótfűtés opció |
500 | Hajdu STA500C adatlap - ár |
| Hajdu indirekt tároló |
STA500C2 |
Padlón - álló |
Napkollektor vagy kazán |
Két hőcserélő - villany pótfűtés opció |
500 | Hajdu STA500C2 adatlap - ár |
| Hajdu indirekt tároló |
STA800C |
Padlón - álló |
Napkollektor vagy kazán |
Egy hőcserélő - villany pótfűtés opció |
800 | Hajdu STA800C adatlap - ár |
| Hajdu indirekt tároló |
STA800C2 |
Padlón - álló |
Napkollektor vagy kazán |
Két hőcserélő - villany pótfűtés opció |
800 | Hajdu STA800C2 adatlap - ár |
| Hajdu indirekt tároló |
STA1000C |
Padlón - álló |
Napkollektor vagy kazán |
Egy hőcserélő - villany pótfűtés opció |
1000 | Hajdu STA1000C adatlap - ár |
| Hajdu indirekt tároló |
STA1000C2 |
Padlón - álló |
Napkollektor vagy kazán |
Két hőcserélő - villany pótfűtés opció |
1000 | HajduSTA1000C2 adatlap - ár |
HAJDÚ Indirekt tároló a háztartásokban már igen jól bevált , főbb jellemzői a jó minőség és megbízhatósága, valamint a széleskörű szervíz és pótalkatrészek skálája. Egyaránt rendelhetőek álló és fali kivitelben is. A készülékek felfűthetők bármilyen kazán melegvizével vagy napkollektorról is (ez utóbbi a 150–200 literes kiviteleknél ajánlott). A kazán vezérlésére, illetve a tárolt víz hőmérsékletének szabályozására váltóérintkezős hőfokszabályozó szolgál (ez forgatócss-button-termekbal max. 65 C-ig tetszés szerint állítható). A készülékek egy vagy egyidejűleg több vízvételi hely, illetve zuhanyzós csaptelepek ellátására is alkalmasak. A tárolt meleg víz mind tisztálkodási, mind étkezési célra alkalmas. A villamos pótfűtésnek külön hőmérsékletszabályozó-korlátozó szerelvénye van (IDE..F,IDE..S), mely gyárilag 65°C-ra van beállítva. A készülékek köpenye fehérre porlakkozott acéllemez.
HAJDU KONDENZÁCIÓS KAZÁN
| KATEGÓRIA | TERMÉKNÉV | TÍPUS | TELJESÍTMÉNY (kW) |
RÉSZLETES MŰSZAKI INFORMÁCIÓ - ÁR |
|---|---|---|---|---|
| Hajdu kazán | HGK-24 | Kondenzációs gázkazán | 22,1 | Hajdu HGK-24 adatlap - ár |
| Hajdu kazán | HGK-28 | Kondenzációs gázkazán | 28 | Hajdu HGK-28 adatlap - ár |
| Hajdu kazán | HGK-36 | Kondenzációs gázkazán | 32,7 | Hajdu HGK-36 adatlap - ár |
| Hajdu kazán | HGK-47 | Kondenzációs gázkazán | 42,5 | Hajdu HGK-47 adatlap - ár |

A HAJDU kondenzációs gázkazánok típusok alkalmasak fűtésre és használati meleg víz (HMV) előállításra is. A speciálisan kialakított hőcserélőnek köszönhetően a fűtés és meleg víz előállítás egymástól függetlenül is üzemelhet.
A HAJDU HGK típusú, kondenzációs gázkazánok falra szerelhető kivitelben készülnek. Alkalmasak fűtésre és használati meleg víz előállításra is. A speciálisan kialakított hőcserélőnek köszönhetően a fűtés és meleg víz előállítás egymástól függetlenül is üzemelhet. Az alkalmazott legmodernebb kondenzációs technikának köszönhetően, kategóriájában nem csak a legmagasabb hatásfokkal működnek, hanem egyben rendkívül környezetkímélők is. A pontos modulációnak és a különleges hőcserélőnek köszönhetően, a mindenkori hőigényeknek megfelelően funkcionálnak, így minden üzemmódban magasabb a vízoldali hatásfok 100%-nál, melyet a hagyományos gázkészülékekkel lehetetlen elérni.
Alapvetően földgázüzeműek (G25), de igény szerint átalakíthatóak PB-üzemre (G31) is. Kompakt készülékek, használatuk egyszerű és kényelmes, karbantartási igényük minimális. A készülékek (meleg víz/fűtés) 24/18, 28/24, ill. 36/30KW-os teljesítményű kivitelben kaphatók.
HAJDU HGK Smart KAZÁN
| KATEGÓRIA | TERMÉKNÉV | TÍPUS | TELJESÍTMÉNY (kW) |
RÉSZLETES MŰSZAKI INFORMÁCIÓ - ÁR |
|---|---|---|---|---|
| Hajdu kazán | HGK Smart 24 | Kondenzációs gázkazán | 23,3 | Hajdu HGK Smart 24 adatlap - ár |
| Hajdu kazán | HGK Smart 28 | Kondenzációs gázkazán | 29,1 | Hajdu HGK Smart 28 adatlap - ár |
| Hajdu kazán | HGK Smart 36 | Kondenzációs gázkazán | 32,7 | Hajdu HGK Smart 36 adatlap - ár |

A HAJDU kondenzációs gázkazánok típusok alkalmasak fűtésre és használati meleg víz (HMV) előállításra is. A speciálisan kialakított hőcserélőnek köszönhetően a fűtés és meleg víz előállítás egymástól függetlenül is üzemelhet.
A HAJDU Smart HGK típusú, kondenzációs gázkazánok falra szerelhető kivitelben készülnek. Alkalmasak fűtésre és használati meleg víz előállításra is. A speciálisan kialakított hőcserélőnek köszönhetően a fűtés és meleg víz előállítás egymástól függetlenül is üzemelhet. A HGK típusú kondenzációs kazánok tovább fejlesztett változatai HGK Smart kazánok, így még tökéletesebbé vált a kazán család hatásfoka, és mindezek mellett megtartotta az összes jó tulajdonságát is, ami már a HGK kondenzációs családban megtalálható volt. A pontos modulációnak és a különleges hőcserélőnek köszönhetően, a mindenkori hőigényeknek megfelelően funkcionálnak, így minden üzemmódban magasabb a vízoldali hatásfok 100%-nál, melyet a hagyományos gázkészülékekkel lehetetlen elérni.
Alapvetően földgázüzeműek (G25), de igény szerint átalakíthatóak PB-üzemre (G31) is. Kompakt készülékek, használatuk egyszerű és kényelmes, karbantartási igényük minimális.
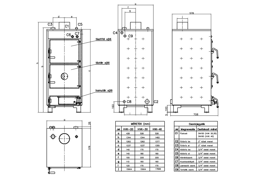
HAJDU VEGYESTÜZELÉSŰ KAZÁN
| KATEGÓRIA | TERMÉKNÉV | TÍPUS | TELJESÍTMÉNY (kW) |
RÉSZLETES MŰSZAKI INFORMÁCIÓ - ÁR |
|---|---|---|---|---|
| Hajdu kazán | HVK-20 | Vegyestüzelésű kazán | 20 | Hajdu HVK-20 adatlap - ár |
| Hajdu kazán | HVK-30 | Vegyestüzelésű kazán | 30 | Hajdu HVK-30 adatlap - ár |
| Hajdu kazán | HVK-40 | Vegyestüzelésű kazán | 40 | Hajdu HVK-40 adatlap - ár |
Az HAJDU HVK vegyestüzelésű kazánok meleg víz üzemű fűtési rendszerekhez lettek kifejlesztve. Alkalmasak családi házak, műhelyek, különböző gazdasági épületek, mezőgazdasági üzemcsarnokok, üvegházak gravitációs és szivattyús fűtésére. A HAJDU vegyestüzelésű kazánok szilárd tüzelőanyagok elégetésére készültek, így alkalmasak a fekete és barnaszenek, brikettek, különféle tűzifa, fahulladék, ágnyesedék elégetésére. A termékcsalád 20, 30 és 40 kW-os névleges teljesítményű kivitelben kerül forgalomba. A teljesítmények fatüzelés esetén értendők. Széntüzelés esetén a névleges teljesítmény típusonként 5 kW-tal nagyobb. A kompakt felépítésnek és a komplett kivitelnek köszönhetően egyszerűen illeszthető be a fűtési rendszerbe. A készülékre szerelt hőszigetelt burkolat minimális hőveszteséget biztosít. A tartozék hőmérő és a termosztatikus huzatszabályozó teljessé teszi a felszereltséget. Sokoldalúságát mutatja, hogy zárt és nyitott rendszerben egyaránt alkalmazható; önálló fűtőkészülékként vagy rendszerbe integrálva is üzemeltethető. A beépített termikus biztonsági hőcserélővel kiépíthető a vegyestüzelésű kazán túlfűtés elleni védelme, egy "hűtőkör", amely áramszünet esetén is megakadályozza a túlmelegedést. A csöves hőcserélő és vízhűtéses rostély garantálja a magas hatásfokot.LETÖLTHETŐ DOKUMENTÁCIÓK

Hajdu kondenzációs kazán beüzemelési útmutató
Hajdu kondenzációs kazán kezelési útmutató
Hajdu vegyestüzelésű kazán műszaki adatok
Hajdu vegyestüzelésű kazán szerkezeti rajz
Hajdu puffertartály
Hajdu vízmelegítő, bojler, indirekt tároló
Hajdu cégfilozófia alapjai:
-
a vevői igények minél magasabb szintű kielégítése,
-
időtálló, kiváló minőség biztosítása,
-
a termékeink, folyamataink folyamatos fejlesztése,
-
a környezet védelme, a környezeti elemek takarékos felhasználása,
-
tevékenységeink során a tudás, a képzettség elismerése, hasznosítása,
-
a dolgozók bevonása a fejlesztési és végrehajtási folyamatokba,
-
HAJDU termékekhez hűséges európai vevők igényeinek teljes körű megfelelése.
HAJDU GARANCIA
- Hajdu kondenzációs kazán: hőcserélő szivárgására 6 év, egyéb meghibásodásokra 2 év
- Hajdu vegyestüzelésű kazán: 2 év
- Hajdu puffertartály: 3 év
- Hajdu indirekt tároló: tárolóra 7 év, egyéb részegységekre 2 év
- Hajdu zárt rendszerű elektromos vízmelegítő, bojler: tartályra 7 év, egyéb részegységekre 2 év
- Hajdu gáztüzelésű vízmelegítő: tartályra 5 év, egyéb részegységekre 2 év
Betekintés a cégtörténetbe:
Elérhetőségünk: Telefon: 06 70 703 8112 Kérdés esetén, készséggel állunk rendelkezésre!1952. A Hajdúsági Iparművek megalapítása.
1966. Forróvíztárolók gyártásának beindítása.
1997. A HAJDU Rt.-t a Magyar Nemzeti Minőség Klub tagjává választják.
A Környezetirányítási rendszer bevezetése PHARE támogatással.
2002. ISO 9001:2000 szerinti minőségirányítási rendszer bevezetése és tanúsítása (SGS).
2010: Magyar Termék Nagydíj - puffertartály család
Magyar Minőség Háza 2010. – STA típusú, multi-energiás (indirekt, szolár) fűtésű, műanyag burkolatú, álló forróvíztárolók
Magyar Brands – a HAJDU márka felkerül a TOP 50 fogyasztói listára
Üzleti Etikai Díj 2010. elnyerése nagyvállalati kategóriában
1966. Forróvíztárolók gyártásának beindítása.
1997. A HAJDU Rt.-t a Magyar Nemzeti Minőség Klub tagjává választják.
A Környezetirányítási rendszer bevezetése PHARE támogatással.
2002. ISO 9001:2000 szerinti minőségirányítási rendszer bevezetése és tanúsítása (SGS).
2010: Magyar Termék Nagydíj - puffertartály család
Magyar Minőség Háza 2010. – STA típusú, multi-energiás (indirekt, szolár) fűtésű, műanyag burkolatú, álló forróvíztárolók
Magyar Brands – a HAJDU márka felkerül a TOP 50 fogyasztói listára
Üzleti Etikai Díj 2010. elnyerése nagyvállalati kategóriában
Hajdu gázkazán beüzemelés, garanciális szerviz: H&H 2023 és TSAI Kft. Telefon: 06(27)358-297 / 06(20)972-6762
A megrendelt készüléket kedvező áron házhoz szállítjuk, vagy személyesen átveheti budapesti irodánkban.
Hajdu Kazán – Hajdu Vízmelegítő - Hajdu Bojler - Hajdu Puffertartály - Hajdu Indirekt tároló - Hajdu Napkollektor
Hajdu Kazán – Hajdu Vízmelegítő - Hajdu Bojler - Hajdu Puffertartály - Hajdu Indirekt tároló - Hajdu Napkollektor
Hajdu Akció – Bojler, puffertároló, kondenzációs kazán, vegyestüzelésű kazán. Eladó Hajdu termékek ár garanciával. Akciós árak, országos házhoz szállítás.



